T2 T3 Neuf Gravelines

RUE Laridant , 59820 Gravelines

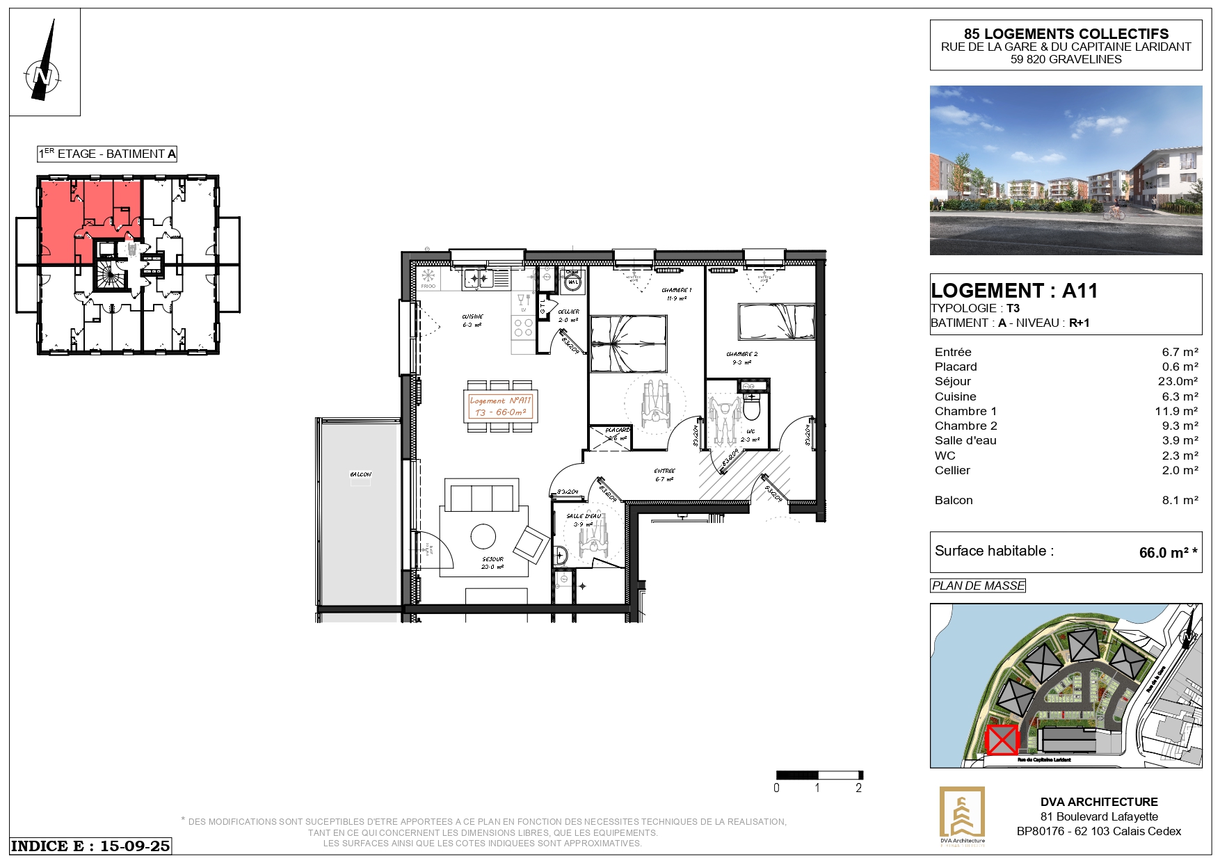
53.5m2

DPE : B

Location

Loyer hors charges: 699.46 €

Charges*: 65.94 €

*taxes OM, contrat d'entretien

Description du bien

28 appartements T2 T3 neufs à louer – Gravelines

    Les logements se situent dans une résidence récente, sécurisée et équipée d’un ascenseur, offrant un cadre de vie agréable, calme et lumineux.

    La résidence se situe en retrait de la rue, sur les bords de l'Aa, à proximité de la gare TER, à 900 m du centre ville, 3 lignes de bus desservent les logements.

    Caractéristiques des logements :

    • Surfaces comprises entre 53.50 m² et 66 m²
    • Cuisine aménagée et équipée
    • Salle de douche moderne
    • Grand balcon 
    • Volets électriques

    Les atouts de la résidence :

    • Construction neuve – normes RT 2012 (-20%)
    • Aucun frais d’agence ni de dossier
    • Pas de garant demandé
    • Loyer encadré
    • Chauffage individuel
    • Service technique disponible 7j/7

    💰 Loyers : de 669.18 € à 801.79 € / mois hors charges (environ 100 euros de plus)
    📌 Logements LLI (Logement à loyer intermédiaire) soumis à des plafonds de ressources, réservés aux personnes disposant de revenus stables.
    📅 Disponibilité : mi juin 2026

    Contact : atoulotte@flandreopalehabitat.fr

    Contact

    Les équipements

    Placards

    Cuisine équipée

    Douche

    Garage

    Parking couvert

    Stationnement

    Ascenseur

    Accessibilité PMR

    Balcon

    Chauffage individuel

    Pièce

    Chambre

    765.4€ / mois

    Ce logement vous intéresse ?
    Contactez-nous pour plus de détails.

    Contact direct Alexandre TOULOTTE

    Appelez-nous au

    Pour exercer vos droits, contactez  dpo@flandreopalehabitat.fr.

    Nos biens similaires

    Locataire

    CORBEHEM ( 62112 )

    Appartement neuf dans une résidence sécurisé à CORBEHEM

    à partir de 121 000 €

    A CORBEHEM, rue de la Gare Résidence le Clos du Champs : proche des commerces et du cœur de la commu...

    En savoir plus

    Locataire

    LIEVIN ( 62800 )

    Appartements sur LIEVIN, rue du 14 juillet

    à partir de 113 325 €

    LIEVIN, rue du 14 Juillet Devenez propriétaire d'un appartement dans une superbe résidence avec asc...

    En savoir plus

    Locataire

    LA GORGUE ( 59253 )

    20 appartements neufs à LA GORGUE

    à partir de 141 600 € €

    À LA GORGUE, Résidence la Lys : proche des commerces et du cœur de la commune, à proximité de la D94...

    En savoir plus